VSSJA-2型雙法蘭限位伸縮接頭
雙法蘭限位伸縮接頭應用范圍VSSJA-2型雙法蘭限位伸縮接頭適用于輸送海水、淡水、冷熱水、飲用水、生活污水、原油、燃油、潤滑油、成品油、空氣、煤氣、溫度不高于250度的蒸汽和顆粒粉狀等介質。雙法蘭限位伸縮接頭功…

······以下圖片均為新躍供水廠家實景實地拍攝,盜圖必究!······



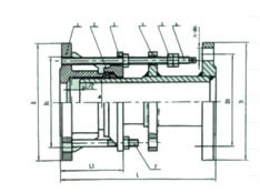
VSSJA-2雙法蘭限位伸縮接頭是由本體、密封圈、壓蓋、伸縮短管等主要部件組成。在松套伸縮接頭原有性能的基礎上增設限位裝置,在最大伸縮量處用雙螺母鎖定。VSSJA-2雙法蘭限位伸縮接頭適用于兩邊均與法蘭連接,安裝時調整產品兩端連接長度,對角依次均勻擰緊壓蓋螺栓,再調整好限位螺母,這樣就能讓管道自由伸縮,鎖定伸縮量,確保管道的安全運行。
產品名稱:VSSJA-2型雙法蘭限位伸縮接頭
產品別名:雙法蘭伸縮接頭 雙法蘭限位伸縮器
產品規格:【DN50mm-DN3000mm】
接頭顏色:藍色,可根客戶需求調色
適用范圍:弱酸、弱堿、弱腐蝕類、油、熱水、冷水等
產品壓力:0.6-1.6MPa
產品認證:ISO9001-2008
產品材質:碳鋼,球墨鑄鐵,不銹鋼
工作溫度:-40度至80度
產品優勢
VSSJA-2型雙法蘭限位伸縮接頭是由本體、密封圈、壓蓋、伸縮短管等主要部件組成。在松套伸縮接頭原有性能的基礎上增設限位裝置,在最大伸縮量處用雙螺母鎖定。管道在允許的伸縮量中可以自由伸縮,一旦超過其最大伸縮量就起到限位,確保管道的安全運行,特別適用于有振動或有一定斜度及拐彎的管路中的連接。
該產品伸縮量大、安裝方便快捷。適用于兩端法蘭連接的管道上面。VSSJA-2型雙法蘭限位伸縮接頭能夠實現管道軸向位移的補償,并且能夠大大減少管道運行時的軸向推力,從而延長管道的使用壽命,保護線路的安全運行。并且安裝在管道線路上能夠方便閥門的拆裝與維護,并且能夠克服地陷對管道線路造成的不良影響。
產品特點
VSSJA-2型雙法蘭限位伸縮接頭適用于管道線路兩端都是法蘭連接。安裝時調整產品兩端與管道或法蘭的安裝長度,對角均勻擰緊壓蓋螺栓,再調整好限位螺母,這樣就能讓管道在伸縮量范圍內可以自由伸縮,鎖定伸縮量,管道的安全運行。
1 伸縮量大,使用壽命長。
2 方便閥門的拆裝,有利于管線的定期維護。
3 本產品能夠有效地起到保護管線避免受到地陷帶來的不良影響。
4 材質優良,運行穩定。VSSJA-2型雙法蘭限位伸縮接頭適用于輸送海水、淡水、冷熱水、飲用水、生活污水、原油、燃油、潤滑油、成品油、空氣、煤氣、溫度不高于250度的蒸汽和顆粒粉狀等介質。
產品示意圖

產品規格


產品服務
專業制造、專業服務,新躍為你創造更多價值
不斷提升服務質量,精益求精,“真誠的服務”是新躍永恒的主題。新躍嚴格按照 ISO9001-2000 質量體系認證要求,質量嚴格把關,責任到人,確保生產、銷售、服務的健康運行。加強與用戶溝通,竭誠為廣大客戶提供優質產品,至善至美服務,特此新躍做出如下承諾:
產品標準
產品嚴格按照中國 GB、HG 標準和美國 API 等標準設計、制造、驗收。密封面硬度達到國家規定要求,寬度超過國家標準。
售前服務
產品介紹,技術交流,非標產品設計,疑難解答。
售中服務
1、守信合同,保證及時供貨,隨時保持與客戶聯系
2、對特殊或復雜的產品,我廠安排技術人員對用戶進行產品使用、故障排除、調式及維修進行培訓和指導。
售后服務
1、新躍產品質保期為自出廠起 12 個月,實行“三包”服務(包退、包換、包修)。
2、產品在使用中我廠定期組織技術、檢查人員進行訪問,征詢用戶對產品質量、使用狀況、改進意見等方面的反饋,以便進一步提高產品質量。
3、對用戶投訴產品質量問題,快速做出反映,售后服務人員在 24-36 小時(省外 48 小時)趕赴現場。
訂貨流程與須知
1、客戶采購清單請聯系在線客服,或加新躍官方QQ:2172152931 / 發至郵箱:2172152931@qq.com / 來電咨詢13140182505
2、收到客戶采購清單,為客戶提供產品型號選型與報價(價格清單)。
3、具體商定:交貨期、特殊要求等事宜。
訂貨須知
1、客戶對產品有特殊要求,須在訂貨合同中提供以下說明:
(1)結構長度
(2)連接形式
(3)公稱直徑、全通徑、縮徑、管道尺寸
(4)用介質及溫度、壓力范圍
(5)實驗、檢驗標準及其他要求本廠可根據客戶特殊要求配置定做和設計特殊產品。
2、本廠可根據客戶特殊要求配置定做和設計特殊產品。
3、如由客戶提供確定的產品類型和型號時,客戶應正確說明其型號的含義和要求,在供需雙方理解一致的條件下簽訂合同。
壓蓋式松套伸縮接頭
伸縮節 伸縮器
SQX雙法蘭限位伸縮器
VSSJA系列雙法蘭限位伸縮接頭的作用及應用
新躍牌雙法蘭限位伸縮接頭
橡膠接頭 撓性橡膠接頭…
橡膠接頭、卡箍橡膠接頭、大翻邊橡膠接頭新躍橡膠接頭廠家,專業生產,量大從優!

不銹鋼雙法蘭限位伸縮…
不銹鋼雙法蘭伸縮接頭是由本體、密封圈、壓蓋、伸縮短管等主要部件組成。在松套伸縮接頭原有性能的基礎上增設限位裝置,在最大伸縮量處用雙螺母鎖定。管道在允許的伸縮量中可以自由伸縮,一旦超…

可曲撓橡膠接頭
可曲撓橡膠接頭簡介可曲撓橡膠接頭又叫做橡膠管軟接頭、柔性橡膠接頭、橡膠軟接頭、橡膠接頭、高壓橡膠接頭、橡膠減震器、補償器等。按連接方式分松套法蘭式、固定法蘭式和螺紋式3種;按結構可分…

人防穿線密閉套管
穿線密閉套管說明:1、當迎水面為腐蝕性介質時,可采用封堵材料將縫隙封堵;2.套管穿墻處如遇非混凝土墻壁時,應局部改用混凝土墻壁,其澆注范圍應比翼環直徑(DS)大200,并且必須將套管一次澆固…




![{sdcms[webname]} {sdcms[webname]}](/skins/2009/dw/images/foot_logo.png)
微信